4
2
1763
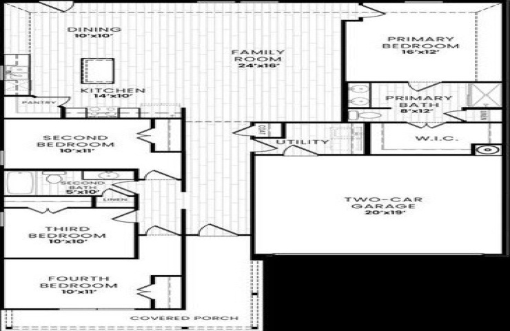
Property Description: MLS# 21147745 - Built by Dunhill Homes - Mar 2026 completion! ~ This stunning single-family residence in Liberty Oaks is designed for modern living, boasting 1,763 square feet of thoughtfully laid-out space. Featuring four spacious bedrooms, including a primary suite, and two full bathrooms, this traditional home is ideal for everyone. The heart of the home is the eat-in kitchen, complete with granite counters, a kitchen island, and a double vanity in the bathrooms for added convenience. Enjoy the comfort provided by central heating and cooling systems. The property is set on a slab foundation with a composition shingle roof. A two-car garage offers ample parking. Located in the Bosqueville ISD, this home is positioned near top-rated schools, making it perfect for educational opportunities. With an estimated completion date of February 2026, this property presents a unique opportunity to own a brand-new home tailored to your lifestyle.