4
2
2189
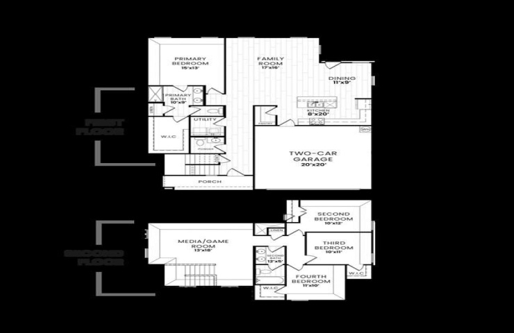
Property Description: MLS# 21147753 - Built by Dunhill Homes - Mar 2026 completion! ~ Experience modern living in this stunning 4-bedroom, 3-bathroom single-family residence in the desirable Liberty Oaks subdivision. Set to be completed by February 2026, this traditional-style home boasts 2,189 square feet of thoughtfully designed space. Each of the four bedrooms features ample natural light, with the primary suite offering a private retreat. The heart of the home showcases an inviting eat-in kitchen, complete with granite countertops, a kitchen island, and a double vanity for added convenience. Enjoy the comfort of central heating and cooling, along with a spacious layout that includes two living areas and a dedicated dining area. The property also features a two-car garage. Located within the esteemed Bosqueville ISD, this home is perfect for anyone seeking quality education options, with schools just moments away. Don't miss the opportunity to make this future residence your own!