4
2
1571
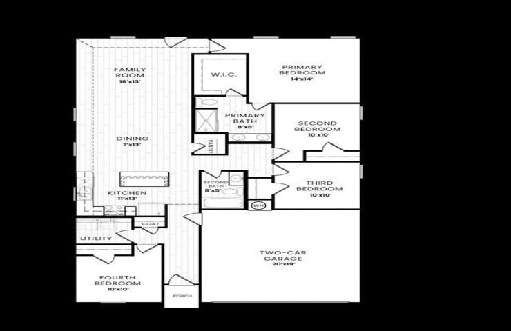
Property Description: MLS# 21147757 - Built by Dunhill Homes - Mar 2026 completion! ~ Experience modern living in this stunning 4-bedroom, 2-bathroom single-family residence located in the desirable Park Meadows subdivision. Scheduled for completion in January 2026, this traditional home boasts a spacious 1,571 sq. ft. layout designed for comfort and convenience. The open floorplan features an eat-in kitchen equipped with a pantry, double vanity in the bathrooms, and luxurious walk-in closets. Located within the Midway ISD, this home is perfect for anyone seeking an inviting and functional space. Don’t miss the chance to make this future home your own!