3
2
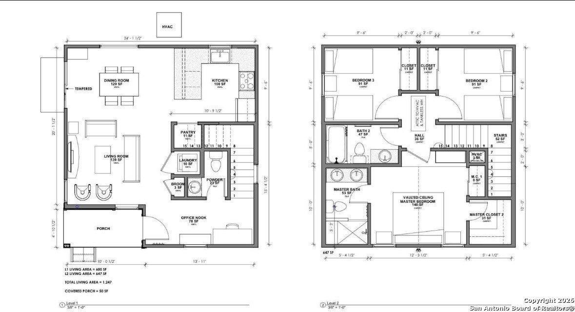
1246
Property Description: Welcome to 503 Martin Luther King - a brand-new single family home just 4 blocks from the Alamodome, right in the heart of San Antonio. Whether you're looking for a cozy urban home, short-term stay, a mid-term retreat, or a long-term rental, this property offers unmatched flexibility and convenience. Located just minutes from the River Walk, The Pearl, and all the vibrant hotspots that make San Antonio unique, 503 Martin Luther King offers easy access to all major highways-making your commute around the city effortless. This newly built home comes complete with a builder's warranty.