3
2
2004
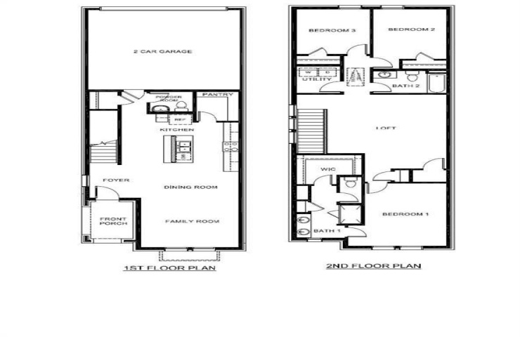
Property Description: Welcome to Watercolor, a vibrant new mixed-use community of townhomes and row homes in Euless, TX, offering the perfect blend of modern design, everyday convenience, and connected living. Ideally located near E Harwood Rd with easy access to TX-121, TX-183, and TX-360, Watercolor places you just minutes from DFW International Airport, major employers, and popular destinations like Glade Parks, Arlington Highlands, and historic downtown Grapevine. This thoughtfully planned neighborhood features a variety of 2- and 3-story homes, including stylish townhomes ranging from 1,718 to 1,889 sq. ft. and spacious row homes with 3 to 4 bedrooms, 2.5 to 3.5 bathrooms, and 2-car garages. Inside, you’ll find open-concept floorplans designed for modern living—featuring contemporary finishes, smart home technology, and flexible spaces perfect for entertaining or relaxing at home. At Watercolor, lifestyle is everything. Residents will enjoy a host of community amenities including a resort-style pool, scenic walking trails, and a tranquil pond—all designed to encourage outdoor enjoyment and a sense of community. As a mixed-use development, Watercolor also offers the potential for future walkable conveniences like shops, dining, or services just steps from your door. Located in the highly rated HEB ISD school district, Watercolor combines suburban charm with urban accessibility—making it an ideal place to grow, connect, and call home. Find your new home at Watercolor in Euless today—where modern homes, walkable amenities, and unbeatable location come together.