4
2
2051
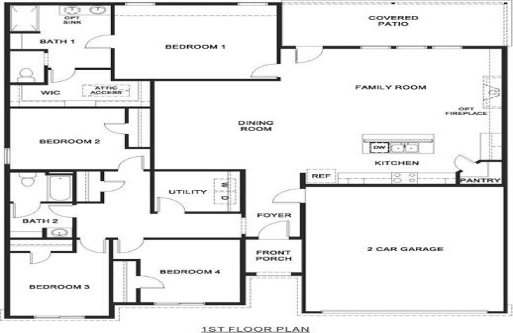
Property Description: New construction by D.R. Horton. Our P50E Egret Plan is in Windrose located within the rapidly growing city of Pilot Point. This is a 4 bed 2 bath open concept floorplan. Home on a large lot will feature waterproof laminate plank flooring, quartz countertops, and stainless steel appliances. Smart home included.