3
2
1172
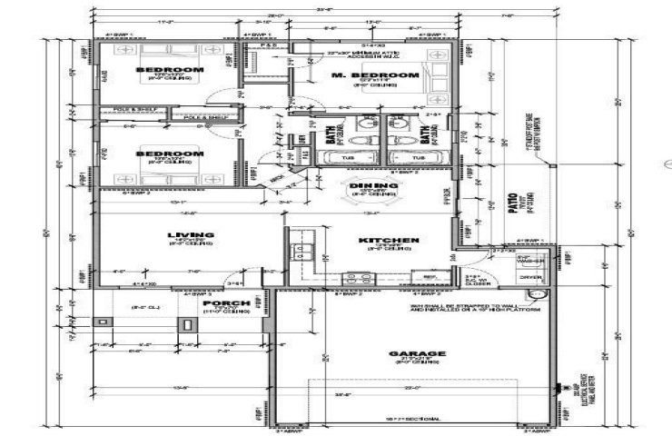
Property Description: BRAND NEW BUILD !! BEAUTIFUL OPEN CONCEPT 3 BEDROOM 2 BATH WITH 1172 SQFT. LIVING AREA. MATCHING GRANITE IN THE KITCHEN AND BATHROOMS , CERAMIC TILE FLOORING WITH CARPET IN BEDROOMS , SCHEDULE YOUR APPOINTMENT TO VIEW THIS HOME. IT'S A MUST SEE ! EXPECTED COMPLETION IN 2026