4
3
1783
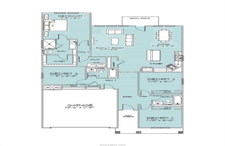
Property Description: New Sterling series floor plans are available from Omega Builders with no rear neighbors and a dedicated greenbelt. Exclusive incentives available, with an industry leading 10 yr. StrucSure warranty. Highest quality construction that new home buyers deserve and won't find with other builders. The Gruene floor plan features 4 bedrooms and 3 bathrooms that seem larger than 1783 sq. ft. with an open concept living, kitchen and dining! You will love the spa-like master bath, vinyl plank throughout the main areas. The house has many great features including granite countertops, stainless steel appliances, recessed lighting, and more.