4
4
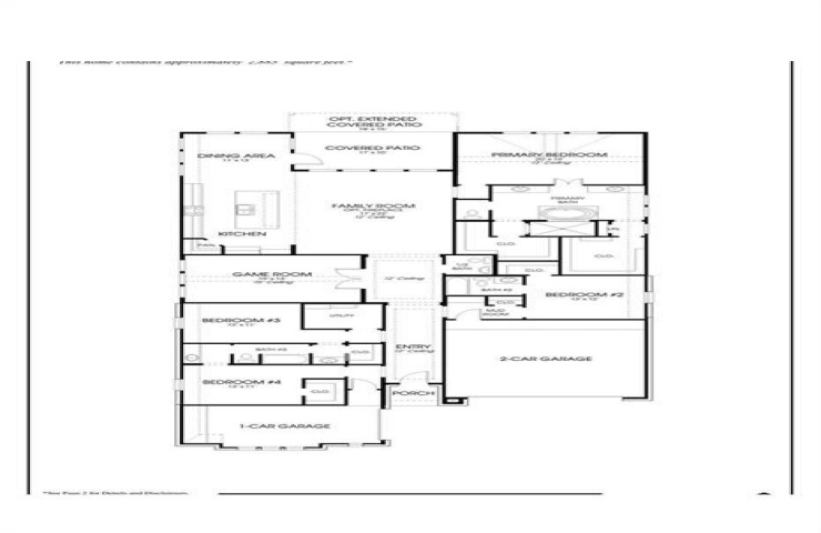
2885
Property Description: Entry and extended entry with 12-foot ceiling. Large game room with French door entry. Island kitchen with a walk-in pantry and a 5-burner gas cooktop flows into the dining area. Spacious family room with sliding glass doors and a wood mantel fireplace. Secluded primary suite with a wall of windows. Dual vanities, center garden tub, separate glass enclosed shower, a linen closet and two large walk-in closets in the primary bath. Guest suite and secondary bedrooms joined by a Hollywood bathroom complete this spacious design. Covered backyard patio. Three-car split garage.