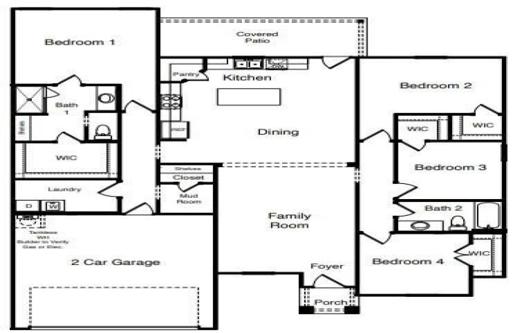
4
2
1888
Property Description: Heritage Parks boasts an enticing selection of four one-story floorplans, catering to a variety of needs and aspirations. Choose from two expertly designed phases, each offering its own charm. The community park fosters a vibrant atmosphere, perfect for picnics, afternoons with the kids, or simply enjoying the fresh air. Experience the energy of a thriving community close to Abilene Christian University, Hardin-Simmons University, Hendrick Medical City North, and the bustling downtown area. Heritage Parks is conveniently situated near the intersection of Liberty Boulevard and State Highway 351, with easy access to Interstate 20 for seamless commutes.