3444
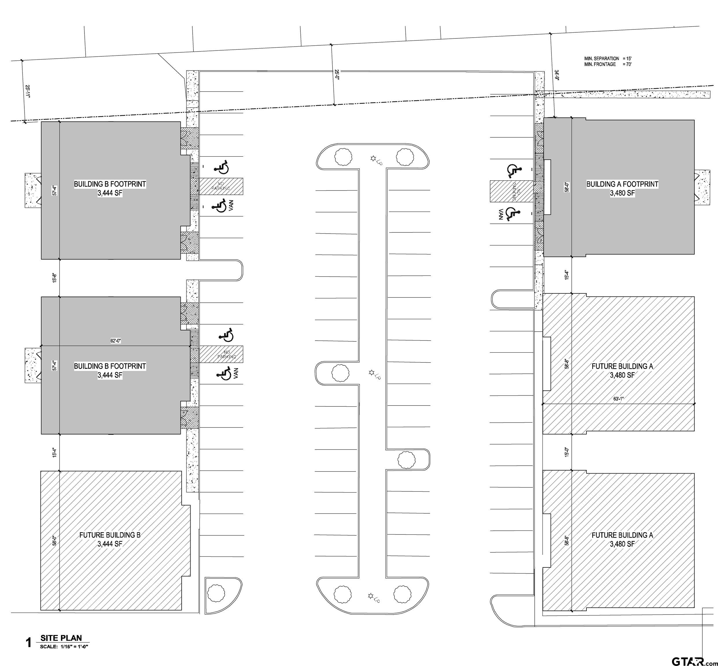
Property Description: Retail / Office Space For Sale. Delivery Spring 2026 - Property will be delivered in shell condition. Total of 3 buildings available for purchase: Option 1 - Full Building. Option 2 - Half Building (listed separately). Zoning C-1. Parking: 99 Total. Traffic Counts: 34,726 VPD (TxDot '24). Contact agent for more details!