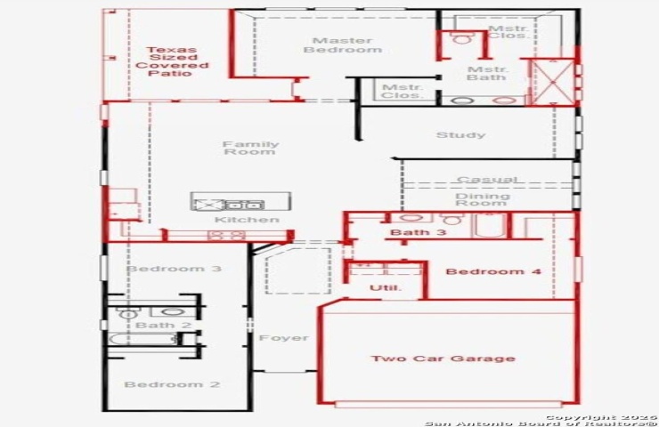
Property Description: Welcome to The Yorktown - a home that perfectly blends thoughtful design, architectural character, and everyday luxury. At 2,147 sq ft, this floor plan lives far larger than it sounds, offering dramatic ceiling heights, open spaces, and beautifully intentional details that make each room feel special. From the moment you step inside, you're greeted by an eye-catching A-frame, high-ceiling dining room that sets the tone for a home that is anything but ordinary. Oversized windows pour in natural light, creating a bright, uplifting atmosphere throughout. Features to fall in love with: * 2,147 sq ft of smart, efficient living space * Four bedrooms and three full bathrooms * Four-sided brick exterior for timeless curb appeal * Open-concept layout designed for modern living * Dramatic A-frame, high-ceiling dining room * Oversized windows that flood the home with natural light * Massive private study, perfect for work, playroom, or flex space * Spacious kitchen open to the main living area for effortless entertaining * Texas-size covered patio ideal for outdoor gatherings * Spa-inspired mega shower featuring dual showerheads, including a rainfall showerhead * Primary suite with two separate walk-in closets The Yorktown is thoughtfully designed to give you the space you need, the luxury you want, and the charm you didn't know you were missing. Whether you're hosting friends, working from home, or enjoying quiet evenings, this home adapts beautifully to your lifestyle.