3
2
2680
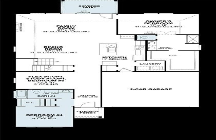
Property Description: Discover this stunning new construction home at 13093 Limestone Street Providence Village, built by M-I Homes. This thoughtfully designed 4-bedroom, 3-bathroom home features an open-concept living space perfect for both daily life and entertaining. Key Features: Flex room Covered patio First-floor owner's suite Game room The owner's bedroom on the main level provides privacy and convenience, while the additional bedrooms offer flexibility for family, guests, or home office needs. The open-concept design connects the kitchen, dining, and living areas, creating an inviting atmosphere for gatherings and daily activities. Aubrey and Providence Village offers residents access to beautiful parks and recreational opportunities throughout the community. The Woodstone neighborhood's thoughtful design emphasizes quality living with convenient access to green spaces and walking trails. This M-I Homes construction showcases quality design elements and attention to detail throughout. The home's layout maximizes both privacy and shared living spaces, making it ideal for families seeking a well-designed new construction home. Experience the benefits of new construction living in the desirable Aubrey community, where quality design meets comfortable neighborhood living. Schedule a visit today!