3
2
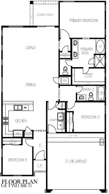
1604
Property Description: Visit our beautiful model home at 15249 Gauge Ct. and see the craftsmanship, spacious layouts, and modern finishes that make our homes stand out. Please note, the property is still under construction, and the photos shown are file photos, not the actual property. The finished home may differ.