4
2
2107
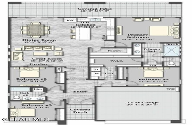
Property Description: ** MODEL HOME ONLY , not for sale** Enjoy the elegance and contemporary style of Aaron-I, expertly crafted to suit your unique lifestyle. Features two generously sized bedrooms connected by a shared hallway bathroom. Moving forward, you'll be met with the impressive great room, complete with a standard fireplace and a spacious gourmet kitchen featuring a central island and expansive walk-in pantry, all overlooking the adjacent dining room. The primary bedroom suite stands out as a highlight of this magnificent abode, boasting a generously sized walk-in closet. Outdoor entertainment options are endless with the extensive, tiled patio area. MODEL HOME ONLY OPEN HOUSE DAILY 10m - 6PM