3
2
1571
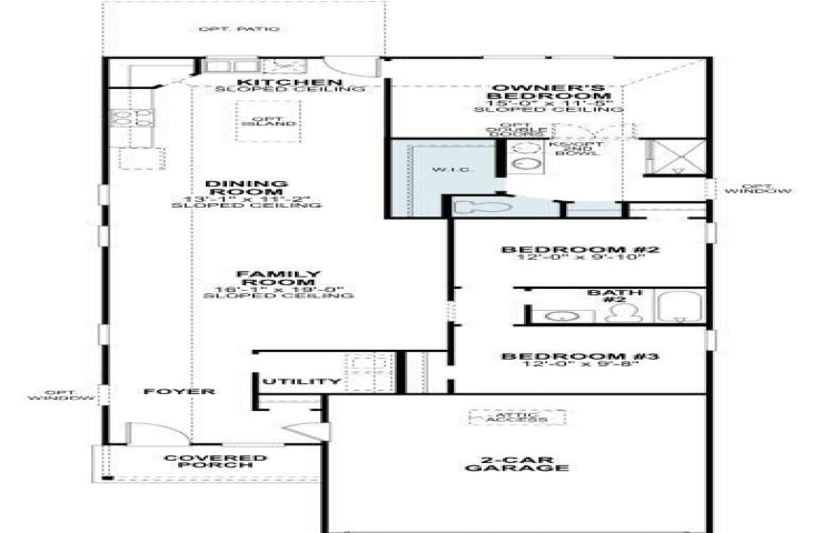
Property Description: Built by M-I Homes. Discover this beautiful new construction home at 14116 Zealand Drive in Pilot Point, Texas. This thoughtfully designed single-story home features an open-concept living space that seamlessly connects your daily activities. Other key features include 3 bedrooms, 2 bathrooms, and a 2-car garage.   The open-concept layout maximizes the available space, creating an inviting environment for both relaxation and social gatherings. You will love the luxurious gourmet kitchen, which comes with a stunning island, granite countertops, and much more. Equally as impressive is the owner's suite featuring an en-suite bathroom with a dual-sink vanity and a spacious walk-in closet.   Quick move-in and waiting for its first owners, this home represents an excellent opportunity to own a quality new construction home in Pilot Point's desirable residential area. Schedule your visit today!