4
4
3313
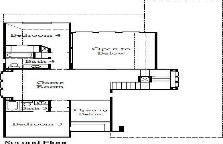
Property Description: MLS# 21155637 - Built by Coventry Homes - Mar 20 2026 completion! ~ This beautifully designed two-story home blends warmth, style, and function in all the right ways. With 4 bedrooms, 4 baths, a private study, game room, and media room, there’s space for work, play, and everything in between. Step inside to soaring ceilings and a light-filled open layout that feels instantly inviting. The home’s neutral palette and modern finishes create a clean, effortless aesthetic — think natural tones, sleek lines, and subtle sophistication. The kitchen flows seamlessly into the main living area, perfect for hosting or hanging out. Upstairs, the game and media rooms make a great escape for movie nights or lazy weekends. The primary suite offers a peaceful retreat with a spa-style bath and generous walk-in closet. Don't miss this opportunity - visit today!