5
3
2809
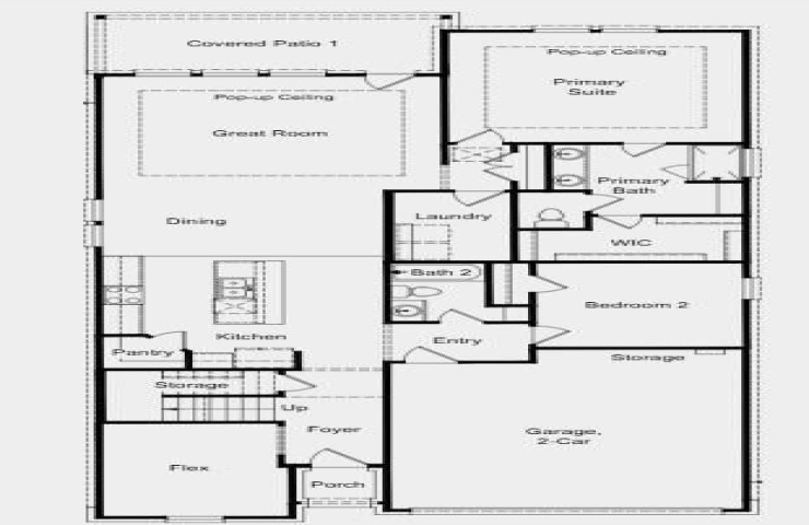
Property Description: New Construction - Ready Now! Built by Taylor Morrison, America's Most Trusted Home Builder. Welcome to The Lunaria at 1433 Arciones Road in Madero. Discover the Lunaria—a two-story design that combines elegance with flexibility. Off the welcoming foyer, a versatile flex room and extra storage add everyday convenience. The open-concept kitchen and gathering room create a bright, connected space for easy entertaining, while the tucked-away primary suite offers a peaceful retreat. A secondary bedroom and full bath on the main level are perfect for guests. Upstairs, you’ll find additional bedrooms, a full bath, and a spacious game room for fun and relaxation. Set on 50’ homesites with winding streetscapes and wide green spaces, this community feels open and inviting. Planned amenities include a resort-style pool, sport courts, scenic trails, and more—all with no MUD or PID taxes! Additional Highlights Include: gourmet kitchen, covered patio, and 8' front door. MLS#21154768