5
3
3675
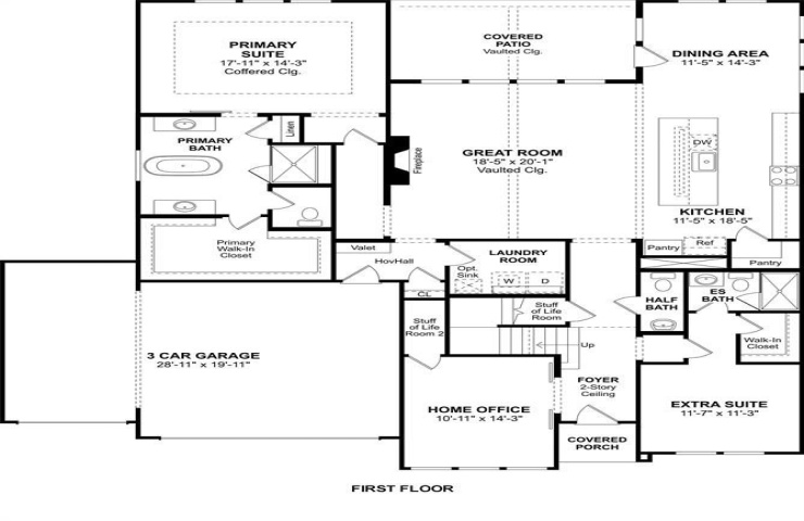
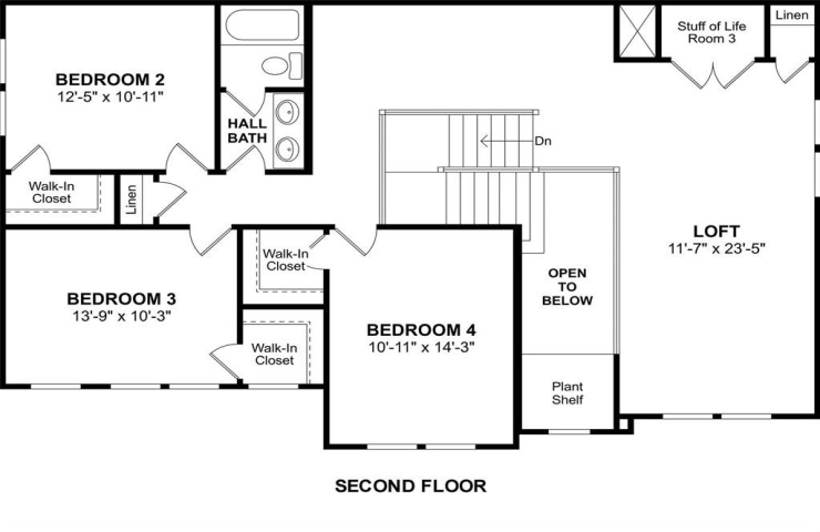
Property Description: Fabulous two-story home located at Heath Golf and Yacht Club in Heath! Private home office at the front of the house, as well as an extra suite with ensuite bath and walk-in closet. Great room features a cozy center fireplace and a wall of windows that floods the room with sunlight. Kitchen has quartz countertops, light stain shaker cabinets, and stainless steel appliances. Three secondary bedrooms, a hall bath, and a welcoming loft space located on the second floor.