5
4
3209
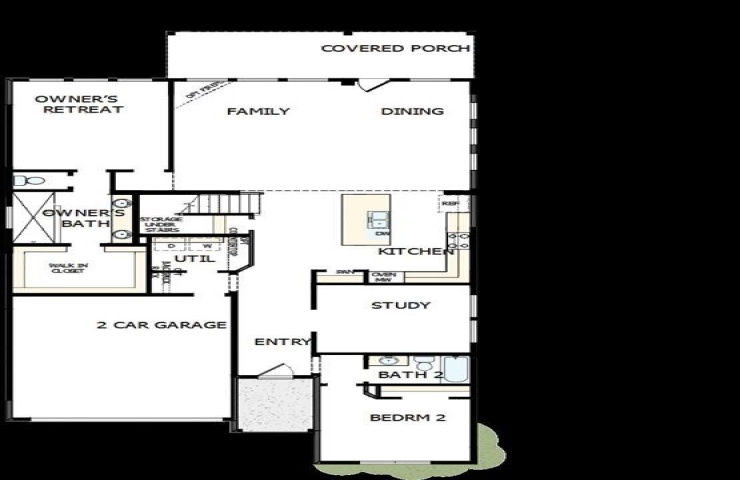
Property Description: Innovative craftsmanship and classic appeal make The Walmsley by David Weekley floor plan. Design the perfect special-purpose spaces for your family in the sunlit study and open retreat. Each spare bedroom presents a great place for your family’s unique personalities. Your spacious Owner’s Retreat provides a beautiful place to begin and end each day and includes a private bathroom and a large walk-in closet. Enjoy collaborative culinary adventures in the showroom-style kitchen, which features a sleek island and a superb culinary atmosphere. You’ll love #LivingWeekley with this expertly-crafted new home in Aubrey, Texas.