4
3
2947
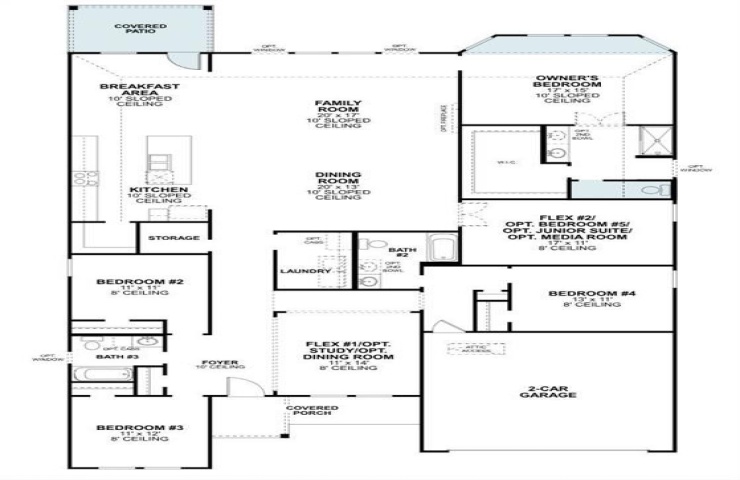
Property Description: Built by M-I Homes. Discover 3408 Majesty Lane in Denton, Texas. This single-story new construction home includes 4 bedrooms, 3 full bathrooms, spacious amount of thoughtfully designed living space, and an open-concept layout connecting main living areas. The open-concept design ensures a seamless flow between the kitchen, dining, and living areas, creating a welcoming environment for both daily living and entertaining. The private owner's bedroom features an en-suite bathroom and walk-in closet, while the additional bedrooms and bonus rooms provide flexible space for family, guests, home offices, or whatever you wish to create. In proximity to local parks for outdoor recreation and activities, this family-friendly community keeps well-maintained streets and green spaces, and is conveniently accessible to nearby amenities and local services. Schedule your visit today!