4
3
2363
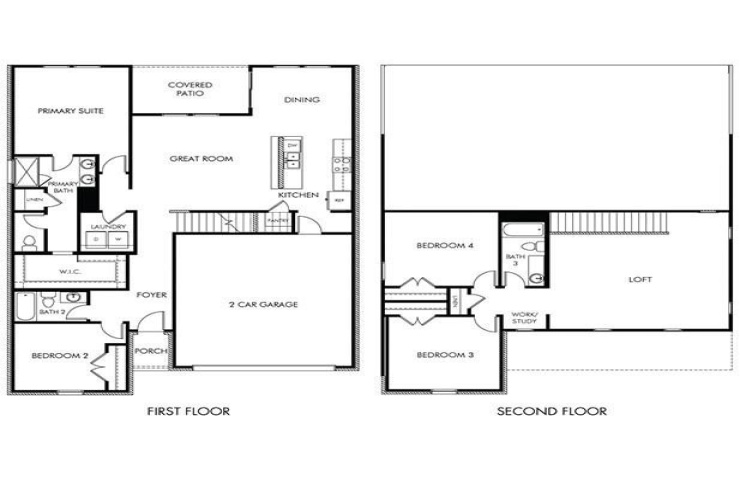
Property Description: BRAND NEW energy - efficient home Mar 2026! Spend mornings preparing breakfast in the open concept kitchen or sipping your coffee on the large covered patio. Pebble cabinets with marble-look white granite countertops, beige tone EVP flooring and multi-tone grey carpet. From the $300s - Escape the bustle of the city without being too far from the action. Beat the summer heat at the private neighborhood amenity center with a pool and playground. Look forward to a future public park, adjacent to the neighborhood, equipped with pickleball courts, soccer fields, and so much more. Zoned for Anna ISD, Parks at Foster Crossing offers 12 unique floor plans to fit any lifestyle. Contact a sales counselor to learn more. Each of our homes is built with innovative, energy-efficient features designed to help you enjoy more savings, better health, real comfort and peace of mind.