3
3
3000
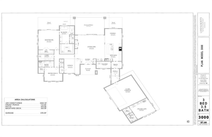
Property Description: Happy Snow Day, one of our standard options include a 50 inch wood burning fireplace for cold snow days. Our Model in Gunter is open this weekend and week if your brave enough to come out, call for times and appointment. Custom home build opportunity with Scott Post Homes available on gorgeous property with heavily treed lake view and dock! Lot backs up to the Corp of Engineers property with direct access to the lake. This unique lot location creates the feel of a home on multiple acres with full beautiful trees. This modern home design features 2 bedrooms, 2.5 baths with Study and open family room to kitchen. High 18 ft vaulted ceilings in family room with large windows following the vault to the top! Three sliding doors, one 20 ft multi slider in Family Room. Detached Guest Suite with bedroom, kitchen, bath and closet off garage. Massive outside covered and open decks. Estimated build time is 6-8 months! We have a low cost upgrade option for a whole house generator that most of our clients are including with their custom home builds, FYI. SPECIAL LOW INTEREST RATE JUST LOWERED to 5.375% on our OTC loan program for our builds, call for details!