5
4
3067
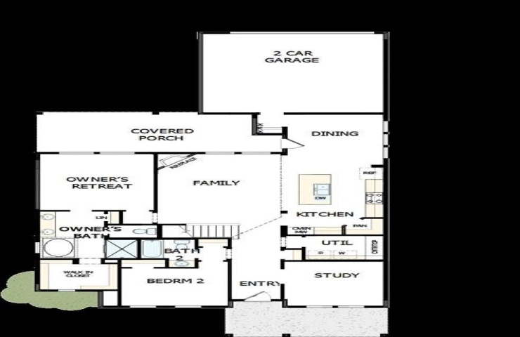
Property Description: The Sonoran floorplan blends elevated design with everyday functionality, featuring a dedicated study, a spacious retreat, and a thoughtfully designed 2-car garage. Enjoy scenic park views from the front of the home and peaceful green space behind, creating a tranquil and private setting. Inside, beautiful appliances, a cozy fireplace, and a spa-inspired Owner’s Retreat with a freestanding tub highlight the home’s refined comfort, while the flexible layout supports both work and relaxation. A large back porch extends the living space outdoors, perfect for entertaining or unwinding while taking in the surrounding views. Contact the David Weekley Homes at Karis Team to tour this home for sale in Crowley, Texas!