4
2
1763
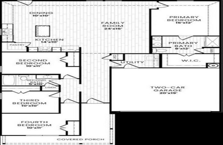
Property Description: MLS# 21159595 - Built by Dunhill Homes - Ready Now! ~ Discover this stunning single-family residence in the desirable Park Meadows community. Built in 2025, this 1,763 sq. ft. traditional home features four spacious bedrooms and two full bathrooms. The open floorplan seamlessly connects the eat-in kitchen and living area, perfect for gatherings. The interior boasts a combination of luxury vinyl plank and carpet flooring. With a two-car garage and situated within the Midway ISD, which includes Hill Elementary, Midway Middle, and Midway High Schools, this home offers a blend of comfort and practicality. Experience contemporary living in an ideal location.