3
2
1600
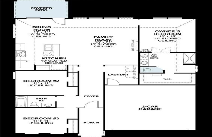
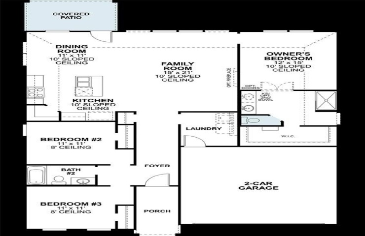
Property Description: Built by MI Homes. Welcome to 7441 Sunset Valley Lane in Ponder, TX, a single-story home that boasts 3 bedrooms, 2 bathrooms, and a 2-car garage. Upon entering from the covered porch, two secondary bedrooms and a full bathroom are situated directly off the entry. Further down the foyer is a large laundry room. Natural light and modern finishes throughout the home create an airy and welcoming environment. The open-concept living space includes the family room, dining area, and kitchen, making it easy to enjoy daily routines or host social gatherings. Enjoy an impressive kitchen finished with granite countertops, a great kitchen island, and spacious cabinetry. This single-story home offers a comfortable balance of style and function. The open layout connects the main living areas, making it easy to enjoy daily routines or host family gatherings. Every detail is designed to enhance both comfort and convenience. The owner’s bedroom in its own private corner provides a quiet escape, featuring an en-suite bathroom and a walk-in closet. The remaining bedrooms offer flexibility for guests, work, or hobbies. Schedule your visit today!