Just listed
$803,473
1216 Strait Lane
Burleson, Texas 76028
Listing ID 21162507
5
3
3896
Property Description:
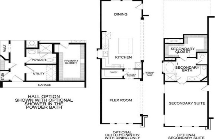
MLS# 21162507 - Built by First Texas Homes - Ready Now! ~ The Hillcrest 2F plan offers custom features above and beyond expectations.
Phone Number:
512-256-9091
Email:
Info@BuildersClearinghouse.com
No Image
www.buildersclearinghouse.com