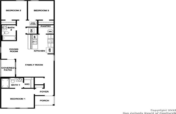
Property Description: Introducing The Wyeth, a beautiful floor plan featured in the Sonora new construction home community in San Antonio, TX. This thoughtfully designed single-story home offers 1023 square feet of living space, with 3 bedrooms and 2 bathrooms, making it the perfect option for families or those looking. The home's exterior is available in two elevation options, both featuring durable James Hardie siding for long-lasting beauty, for a cozy, yet spacious home. The Wyeth replaces a traditional garage with a driveway, providing convenient parking and easy access. The open and blended layout combines the living room, dining area, and kitchen, creating a seamless space for both everyday living and entertaining. The kitchen is a true highlight, featuring modern shaker-style cabinets, sleek stainless steel appliances, and elegant quartz countertops. A corner pantry provides added storage space, making it easy to keep everything organized and within reach. The main bedroom suite is thoughtfully located toward the front of the house for added privacy and comfort. It includes plush carpet flooring, a walk-in closet, and an ensuite bathroom with a single vanity quartz sink, a walk-in shower, and modern finishes. The secondary bedrooms are spacious and feature carpet flooring, large windows that allow natural light to fill the rooms, and closets for storage. Additional features of The Wyeth include quartz countertops in the secondary bathroom and hard surface flooring throughout the living room, dining area, kitchen, and wet areas, ensuring easy maintenance and a modern aesthetic.