4
3
3192
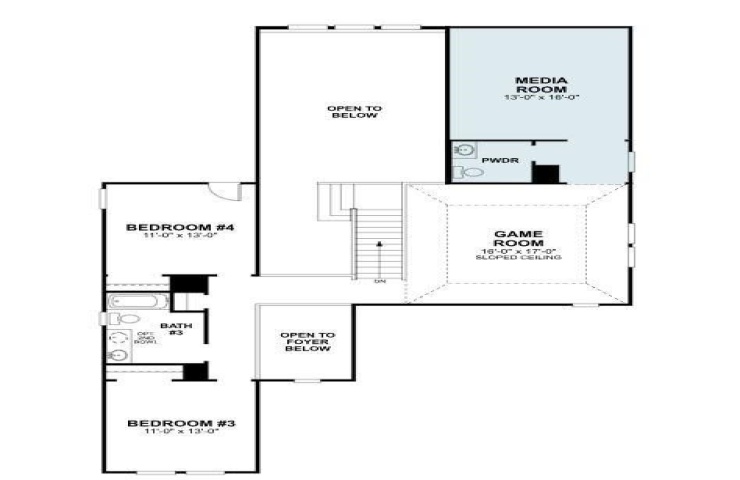
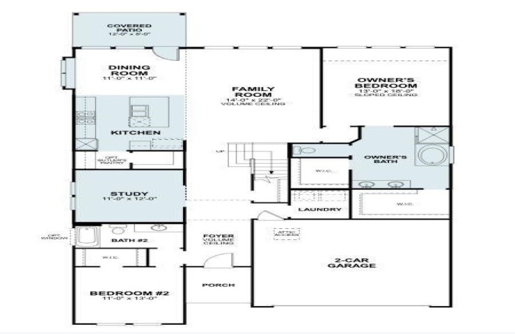
Property Description: Built by M-I Homes. Introducing 1725 Monarch Haven Way in Oak Point, a beautifully crafted new construction home in the brand new community of Chaparral Park. This stunning 2-story home features a flowing open-concept layout that connects the kitchen, dining, and family areas, creating a perfect space for daily living and entertaining. Tall ceilings, large windows, and ample space make this home a true gem with space for everyone in the family to enjoy. Key Features: • 4 bedrooms with a luxurious first-floor owner's suite • 3 full bathrooms plus a half bath • Private first-floor study with French doors • Open-concept floorplan enhancing flow and natural light • Contemporary finishes with new construction quality • Built by M-I Homes with attention to detail Neighborhood & Location Benefits: • Situated in a desirable Oak Point community • Close to parks and outdoor recreational opportunities • Family-friendly neighborhood with well-kept streets and a welcoming atmosphere The main-floor owner's bedroom offers a private corner retreat for relaxation and convenience. Large windows draw in ample light and look out to the landscaped backyard. The deluxe, en-suite bathroom boasts elegant tile selections accentuating the walk-in shower and soaking tub. Plus, enjoy the benefit of not one but two walk-in closets. Upstairs, additional bedrooms provide flexible space for family, guests, or home offices. All bathrooms are thoughtfully designed with quality fixtures and finishes. The large game room and additional media room provide even more space for fun and entertainment. This home combines functional layouts with high-quality construction. Energy-efficient systems, modern design, and builder warranties ensure move-in readiness and peace of mind for the new owners. Experience the comfort and quality of new construction living in Oak Point with this exceptional home. Schedule a visit today to see all it has to offer.