3
2
1200
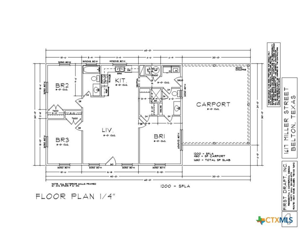
Property Description: Ready to build? This is a great option for Belton TX in our garden home development. This new construction home will feature spray foam insulation for more efficient heating and cooling, as well as a design layout that maximizes all the usable space. This 3-bedroom, 2-bath home is perfect for those looking for something just a little easier to maintain, a first-time home buyer, and even as an investment property. Not ready to move just yet; no problem. We have other homes coming soon that can fit your move-in date. Call today for a viewing!