4
3
2276
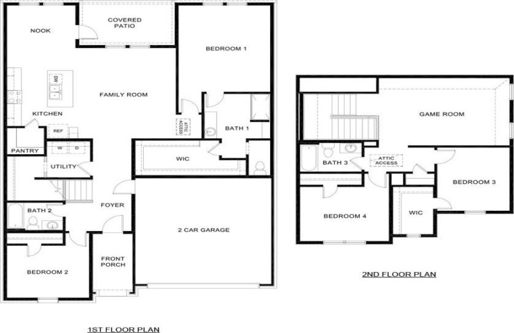
Property Description: New! Amazing story floor plan! Four bedrooms, three full baths, upstairs game room, and nice covered patio. Home includes, large island kitchen, granite counters throughout, LED lighting, full sprinkler system, professionally engineered post tension foundation, and much more! Waverly Estates is a new D.R. Horton community in Josephine. The community is conveniently located just minutes from Interstate 30, providing easy access to Rockwall and the DFW Metroplex. Waverly Estates offers a variety of single-family homes to choose from that range from 1,711 to 2,088 square feet. If you're looking for a new home in the Josephine area, Waverly Estates is the perfect community for you.