4
3
3233
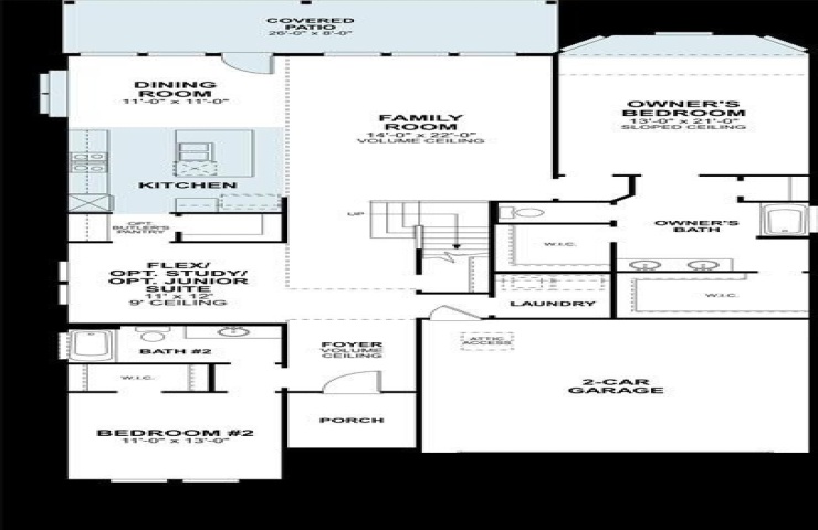
Property Description: Built by M-I Homes. New 4-Bedroom Home for Sale in Celina. 3512 Cedar Creek Road in Celina, TX presents a thoughtfully designed two-story home in a desirable neighborhood. Key Features: • 4 bedrooms plus a Flex Space and Owner’s Bedroom on the main level • Media Room on second floor • 3 full bathrooms and 1 half bathroom • Front-load garage • Open-concept layout connecting kitchen, dining, and living areas • game room or flex space for additional functionality This two-story home features a functional floorplan that enhances the flow between main living areas, making it ideal for both everyday life and entertaining. Thoughtful design ensures comfort and practicality throughout. The owner’s bedroom on the main level provides convenience and privacy, while the additional bedrooms upstairs offer flexible spaces for family, guests, or a home office. Each room has been carefully arranged to maximize light, space, and usability. Neighborhood & Location Benefits: • Close to local parks and recreational areas • Family-friendly community setting • Convenient access to schools and everyday amenities • Easy access to major highways for commuting Schedule a visit today!