3
2
1364
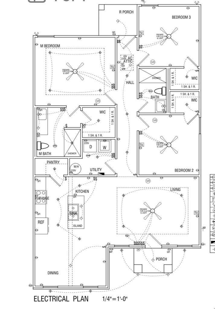
Property Description: New Construction Home – For Sale Beautiful new construction home offering 1,436 square feet of living area with a functional and well-designed layout. This property features 3 bedrooms, 2 full bathroom, a living room, dining room, kitchen, and laundry room. Outside City Limits Lot Dimensions: 50 x 320