4
2
2272
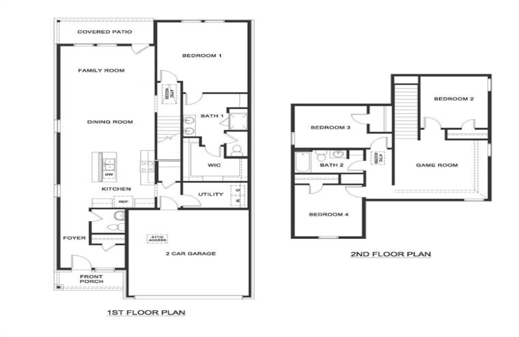
Property Description: New Construction by DR Horton. Amazing flow right into a beautiful 2 story home that offers 4Bedrooms, 2.5 Bathrooms, game room, 2 Car Garage, and Covered Patio. Energy efficient with smart home features included.