4
3
2214
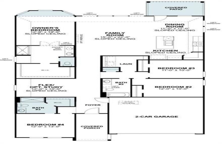
Property Description: Discover this exceptional new construction home at 1717 Opaca Drive in Fort Worth, built by M-I Homes. This thoughtfully designed 4-bedroom, 3-bathroom home offers a spacious amount of square feet of comfortable living space with an open-concept design that seamlessly connects the main living areas. Key Features: Spacious Layout: 4 bedrooms and 3 baths plus a flex room; provide ample space for growing families Open-Concept Living: Flowing design creates an inviting atmosphere for daily living and entertaining New Construction: Built by M-I Homes with quality craftsmanship and attention to detail Outdoor Fun: A covered patio that's perfect for year-round entertainment Well-proportioned living space throughout The home's floorplan maximizes functionality while maintaining an elegant flow between rooms. Each bedroom provides comfortable accommodations, while the 3 full bathrooms ensure convenience for all residents. A private guest room with on-suite bath is located towards the front of the home. Located in a desirable Fort Worth neighborhood, this home offers proximity to local parks and recreational opportunities. The area's quality design standards and well-established community make it an attractive choice for homebuyers seeking both comfort and convenience. The new construction aspect means buyers can enjoy the latest building standards and energy efficiency without the concerns of older home maintenance. M-I Homes reputation for quality construction ensures lasting value and peace of mind. This home represents an excellent opportunity to own a brand-new residence in Fort Worth's thriving real estate market. Contact our team to learn more about 1717 Opaca Drive or to schedule your in-person visit!