4
2
2155
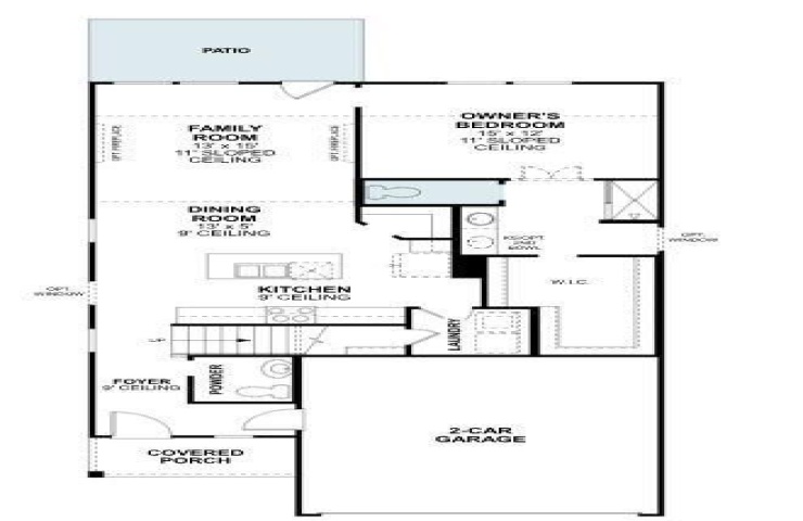
Property Description: Built by M-I Homes. Discover this home now for sale at 7518 Bent Gale Road. This 2-story home showcasing the brand new Sanpiper plan is located in a desirable Pilot Point neighborhood that provides convenient access to local parks and recreational opportunities. Featuring stunning interior finishes and a practical layout, step inside your new-construction dream home! Key Features: • 4 bedrooms, with the owner's bedroom on the main level • 2 full bathrooms and 1 half bathroom • Luxury vinyl plank flooring in the main living spaces • Open-concept design connecting main living areas • A game room on the upper level • High-quality construction with attention to detail The home's layout emphasizes both comfort and practicality, with spacious bedrooms and well-appointed bathrooms. The open-concept living areas allow for easy daily living and seamless entertaining. Thoughtful design details and quality craftsmanship are evident throughout the home. Additional rooms provide flexibility for family, guests, or a home office, creating a versatile and functional living space. Neighborhood & Location Benefits: • Desirable Pilot Point neighborhood with well-planned streets • On-site amenity center, pool, walking trails, and more • Convenient proximity to local parks and outdoor recreation • Peaceful community setting with nearby amenities • Family-friendly environment for active lifestyles Schedule your visit today!