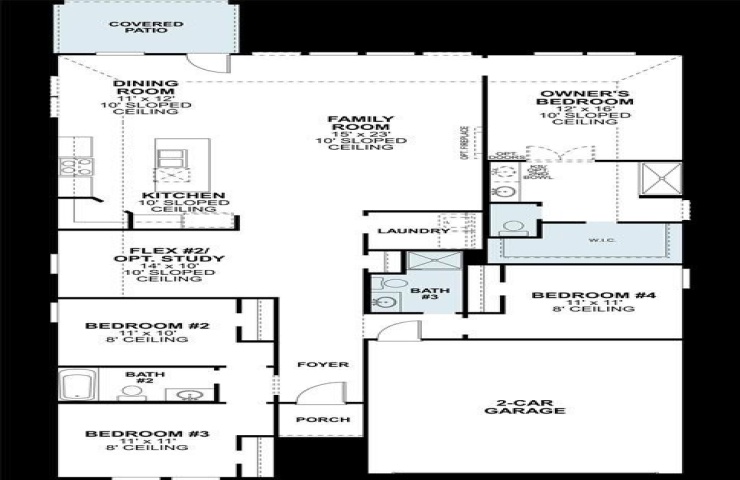
Property Description: Built by M-I Homes. Located in Justin, Texas, 1113 Linwood Drive is a stunning single-story home with so much to offer. Highlights of this home include 4 bedrooms–with the owner’s bedroom in its own private corner–3 full bathrooms, a 2-car front-load garage, an upgraded interior design package, open-concept living areas designed for gathering and everyday comfort, a flex room, and more!
The thoughtfully planned layout creates a natural flow between the kitchen, dining, and main living areas, making the space comfortable for both daily routines and entertaining. The open-concept design allows each area to feel connected while still offering defined spaces. The style and durability of wood-look tile flooring guide you through the main spaces.
The bathrooms offer stylish finishes and marble inspired wall tile.
This home is located in a desirable Justin neighborhood with a family-friendly atmosphere and is close to local parks and outdoor recreation areas. It offers easy access to community amenities and everyday conveniences, with well-planned surroundings that support long-term value.
Schedule your visit today!