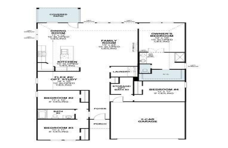
Property Description: Built by M-I Homes. Discover this stunning new construction home at 1617 Gulin Street in Royse City. This thoughtfully designed single-story home offers an abundance of comfortable living space with an open-concept floorplan that's perfect for both daily life and entertaining. This home features 4 spacious bedrooms, 2 full bathrooms designed with quality finishes, an open-concept living space that seamlessly connects the main living areas, a covered patio, and so much more!
As you enter the spacious foyer, you will find two private bedrooms and a full bathroom tucked off the entry. A third bedroom and significant storage space can be conveniently found further down the foyer. On the other side of the foyer is a spacious and bright flex room, an ideal space for everything from a quiet reading lounge to a perfect playroom.
Continue into the open kitchen, dining area, and family room. Enjoy impressive features throughout the kitchen, including granite countertops, a large kitchen island, and spacious upper and lower cabinets. The covered patio offers the perfect space for outdoor entertaining!
Enter a bright owner’s suite that is tucked at the back of the home, privately off the family room. The owner’s bedroom features two large windows, offering an abundance of natural light. Step through the double doors into your owner’s bath retreat, boasting a large walk-in shower, double vanities, and a spacious walk-in closet.
The neighborhood offers proximity to local parks, providing outdoor recreation opportunities just minutes from your front door. With its combination of quality construction, thoughtful design, and desirable location in Royse City, this home represents an excellent opportunity to own a brand-new residence in a welcoming community.
Schedule your visit today!