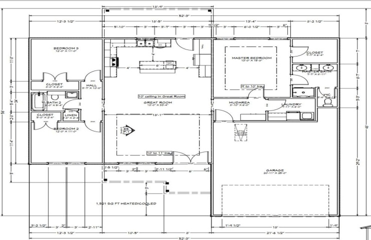
3
2
1521
Property Description: New construction in the works on a spacious 0.75-acre lot! This 3-bedroom, 2-bath home offers an open-concept, split-bedroom design with tall ceilings throughout. The large island kitchen boasts abundant storage and generous counter space, perfect for cooking and entertaining. Enjoy the convenience of a mudroom and a double attached garage. PLUS, you can choose your cabinet colors, paint, countertops, and flooring—making this home uniquely yours.