4
2
1897
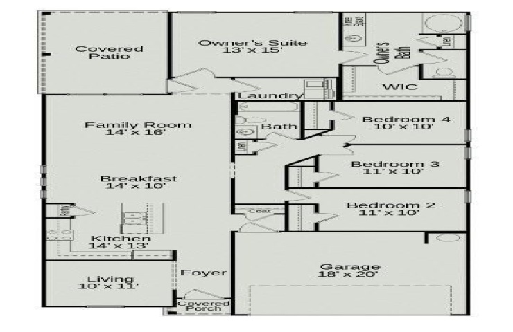
Property Description: MLS# 21168413 - Built by Smith Douglas Homes - Apr 2026 completion! ~ The Oakshire II is a best-selling, one-story home offering four bedrooms, two full bathrooms, and a large covered rear patio. A quaint covered front porch welcomes you into the home with a formal living room on the opposite side of the garage that can be optioned into a home office,study. The open-concept kitchen, breakfast, and family room area lends itself to a ton of natural light and a cohesive main gathering area. The primary suite is situated at the back of the home for maximum privacy, and a private hallway off the kitchen leads into the three secondary bedrooms and a full bathroom.