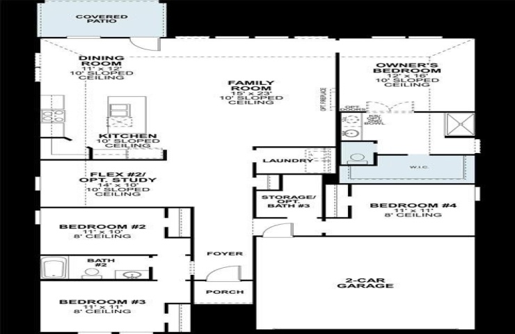
Property Description: Discover this new home at 1501 Gulin Street in Royse City, Texas. With every room positioned on one level, this thoughtfully designed space offers convenient living throughout.
Key Features:
• 4 bedrooms with the owner's bedroom in its own private corner
• 2 full bathrooms
• Open kitchen, dining, and family room
• Thoughtfully planned single level layout
The open living arrangement creates a smooth flow between gathering spaces, making everyday routines and special occasions feel natural and relaxed. Each bedroom offers flexibility for guests, hobbies, or a home office while the owner's bedroom sits in its own quiet area for comfortable privacy.
Royse City provides a welcoming setting close to parks, recreation, and conveniences, giving this home an appealing location within a growing community.
Schedule your visit today!