3
2
1571
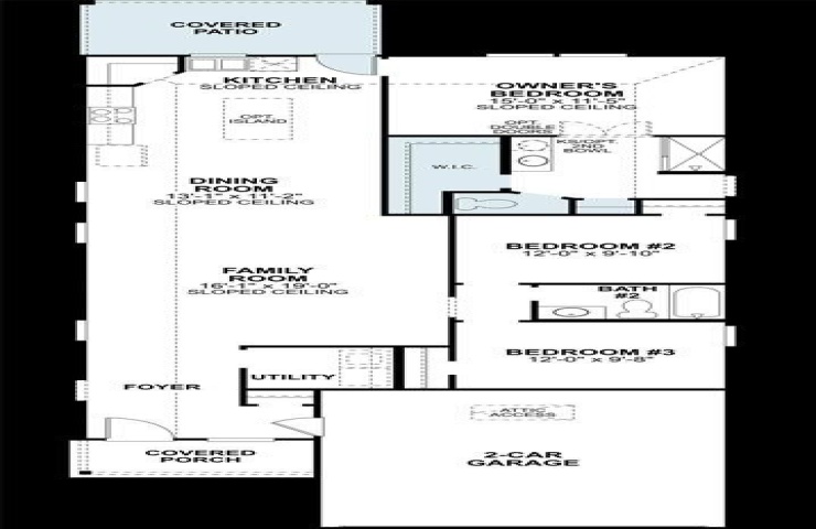
Property Description: Discover this exceptional new construction home at 7425 Spicebush Drive in Ponder, Texas. Key Features: • 3 bedrooms with owner’s bedroom on the main level • 2 full bathrooms • Open-concept floorplan connecting kitchen, dining, and living areas • Two-story layout with flexible living spaces The well-designed layout maximizes space efficiency while maintaining comfort. The open-concept design creates a natural flow between main living areas, making it ideal for daily routines and entertaining. The owner's bedroom on the main level provides convenient access and privacy. Neighborhood & Location Benefits: • Located in a desirable Ponder neighborhood • Close proximity to local parks and recreational opportunities • Peaceful setting with easy access to nearby amenities • Family-friendly community environment Schedule your visit today!