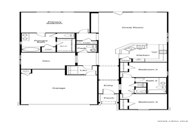
Property Description: This thoughtfully designed home features an open floor plan with a flexible den, creating an ideal space for everyday living. The kitchen is well appointed with upgraded Whirlpool appliances, a side-by-side refrigerator, Woodmont Cody 42-inch upper cabinets, Silestone Miami Vena countertops, and an extended breakfast bar for casual dining. The primary bath offers upgraded cabinetry with knee space and a walk-in entry shower with seat and tile surround. Decorative accents include a Texas Star entry door, Shaw carpet in the living room, Emser ceramic tile in the kitchen, bedrooms, and baths, and Kwikset Ladera interior door hardware. Additional highlights include a wireless security system, a Napoleon electric fireplace, automatic sprinklers, and a fully sodded yard.