4
4
2271
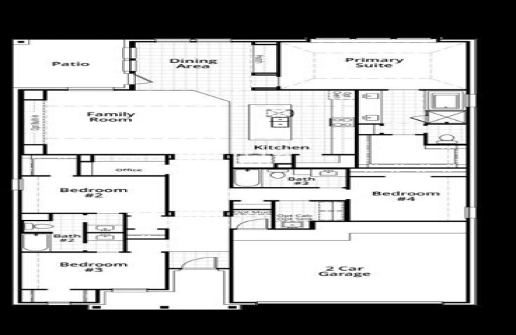
Property Description: Located in the desirable Landmark by Hillwood community in Denton, TX, this beautifully designed Highland Homes Brent floor plan is a single-story, 2,337-square-foot home offering exceptional comfort and functionality. This 4-bedroom, 4-bath residence features an open-concept kitchen, dining area, and spacious family room, creating a bright and welcoming atmosphere ideal for both everyday living and entertaining. The family room is highlighted by a brick fireplace, adding warmth and character to the heart of the home. A dedicated office provides flexible space for working from home or quiet study. The luxury primary suite extension offers a private retreat, complete with a spacious bedroom and a well-appointed primary bathroom featuring a drop-in tub and separate shower, along with a large walk-in closet. Three additional bedrooms and bathrooms provide ample space and privacy for family and guests. A covered patio extends the living space outdoors, while the 2-car garage adds everyday convenience. Thoughtfully designed and located within one of Denton’s premier master-planned communities, this home provides access to Landmark by Hillwood’s amenities, trails, and nearby shopping and dining.