4
4
3259
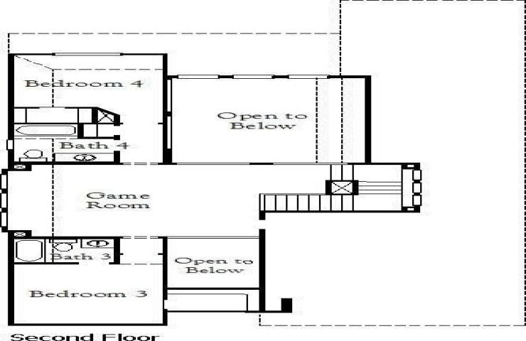
Property Description: MLS# 21172116 - Built by Coventry Homes - May 24 2026 completion! ~ Experience refined living in this stunning two-story home located in the city of Oak Point, offering 3,259 sq ft of well-designed space with 4-bedrooms, 4 full baths, and a 2-car garage. An elegant 8’ front door welcomes you into a bright, open layout designed for both comfort and style. This home includes a flexible bedroom suite option, ideal for guests or multigenerational living, along with a dedicated media room perfect for movie nights or entertaining. The timeless brick exterior on both the 1st and 2nd floors enhances curb appeal, while the powder room option adds everyday convenience. Don’t miss your opportunity to own this exceptional home in Oak Point—schedule your private tour today!