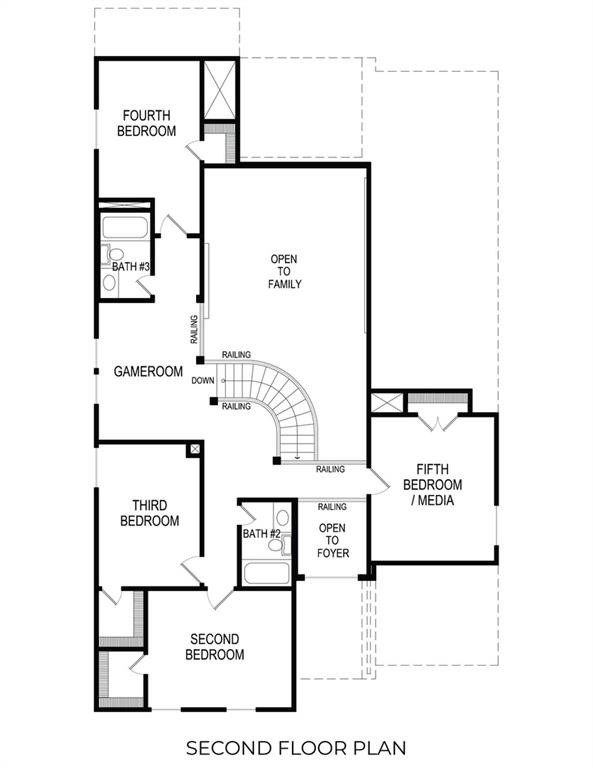
Property Description: MLS# 21172865 - Built by First Texas Homes - Mar 2026 completion! ~ Discover the Cooper F floor plan by First Texas Homes in Lucas, TX, offering 3,205 square feet of elegant living space. This impressive five-bedroom, four-bath home features a modern open-concept design with soaring ceilings and multi-sliding doors that open to a covered patio, perfect for indoor-outdoor entertaining. The Premium Elevation D facade adds curb appeal, while a private study and upstairs game room provide versatile spaces for work and play. Enjoy proximity to Trinity Trails and Lake Lavon. Schedule your private tour today!