5
3
3687
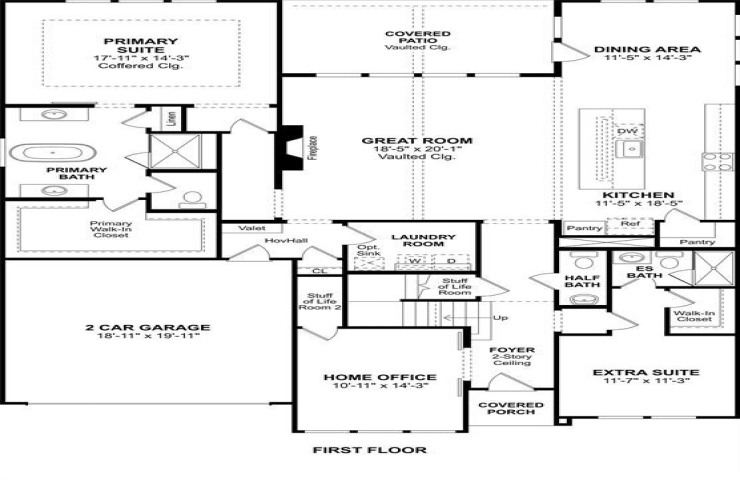
Property Description: Located in Northwest ISD! This stunning 2-story home provides a comfortable open floorplan with an Extra Suite off the foyer with an ensuite bath, perfect for multigenerational living. A convenient home office off the foyer provides privacy with barn doors and ample storage space. The chef kitchen features a spacious island and overlooks the well-lit great room. A sunlit dining area allows access to an expansive covered patio for outdoor entertaining. In from the garage, a HovHall with valet and laundry room keep your home tidy. The primary suite includes a private bath with freestanding tub and split vanities. A versatile upstairs loft and 3 secondary bedrooms allow for comfort for all. Located in Wellington, the neighborhood offers a variety of amazing amenities including a resort-style pool, multi-use amenity center, playground, and walking trails.