10220 Ambrose Drive Aubrey, Texas 76227 Listing ID 21173210
3
2
1440
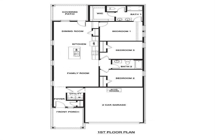
Property Description: New Construction by DR Horton in Silverado community. this cute 3 Bedrooms, 2 Bathrooms, 2 Car Garage with Covered Patio brick exterior and smart home features included.