4
4
3178
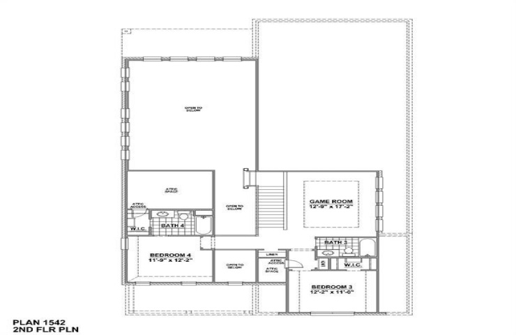
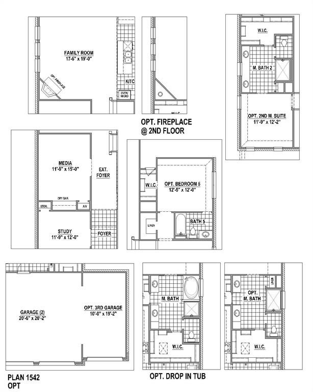
Property Description: Walls of windows showcase beautiful views and enhance the open, airy feel throughout this impressive home. The main living areas flow seamlessly, accented by dramatic open railings and a striking catwalk for added architectural interest. The first floor offers exceptional functionality with two bedrooms downstairs, along with a spacious media room, perfect for movie or game nights. There is a private study which features double storage closets, ideal for working from home while keeping everything neatly organized. The kitchen is well-appointed with a double oven, ample workspace, and is open to the main living areas—perfect for hosting and gathering. Offering a true retreat, the primary suite is complete with generously sized dual closets and a well-designed layout for comfort and privacy. Upstairs, an open game room overlooks the living space below and connects to a large walk-in storage area, providing flexibility and plenty of room for organization. Enjoy added privacy with no immediate backyard neighbors, creating a peaceful outdoor setting. With its smart layout, abundant storage, and impressive architectural details, this home offers the perfect blend of style, space, and livability. This home sits on a corner lot, just a few steps from the 9-arce amenity center.