Property Description: Nestled beneath a canopy of mature trees on a full 1-acre lot in **Edgewood, TX**, this new construction home offers the kind of setting buyers are always searching for — peaceful, private, and surrounded by nature — yet less than 10 minutes from Canton for shopping, dining, and First Monday convenience.
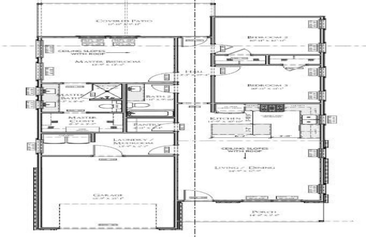
Currently under construction, this 3-bedroom, 2-bath home features 1,351 square feet of smart, well-planned living space designed to maximize comfort and function. The layout delivers an easy, natural flow between the kitchen, dining, and living areas, creating an inviting atmosphere that feels open without wasting space.
The exterior presents clean lines and modern curb appeal, while the interior is designed to be bright, efficient, and practical for everyday living. Every detail is intentional — from the use of space to the overall design — offering a home that feels both manageable and comfortable.
Set among established trees, the property provides shade, character, and a sense of seclusion that’s hard to find in new construction. There’s room to enjoy the outdoors, stretch out, and appreciate the quiet East Texas setting — all while staying conveniently close to town amenities.
With brand-new construction comes the benefit of updated systems, energy efficiency, and the peace of mind that comes from owning a home built with care and quality craftsmanship.
If you’ve been looking for new construction in a treed setting with quick access to Canton, this Edgewood property checks the boxes.